-
Промышленные секционные ворота ISD03ALU
Секционные ворота ISD THERMALPRO устанавливаются в помещениях, оборудованных холодильными или морозильными установками. Герметично изолируя пространства с большими перепадами температур, они позволяют поддерживать созданный в помещении микроклимат и снижать теплопотери. Такие ворота находят применение на производственных предприятиях пищевой промышленности, в складских комплексах и сбытовых организациях. Многообразие типов подъема позволяет обеспечивать замкнутость контура охлаждения на проемах различных конфигураций.
Внешний вид
Таблица размеров
Параметр Показатель Высота проема, мм 2 000–5 000 Ширина проема, мм 2 000–6 000 Притолока, мм От 150 Пристенки, мм От 120; с опцией обогреваемый контур — от 150 Зона применения
Преимущества
Конструкция
1. Угловая стойка;
2. Вертикальная направляющая;
3. Вал цилиндрический;
4. Устройство защиты от обрыва пружины;
5. Барабан;
6. П-образный кронштейн;
7. Балансирующий пружинный механизм (торсионная пружина);
8. Муфта соединительная;
9. Внутренний опорный кронштейн;
10. Верхняя опора с держателем ролика;
11. Боковая опора с держателем ролика;
12. Внутренняя петля;
13. Устройство защиты от разрыва троса;
14. Сэндвич-панель 80 мм;
15. Усиливающий дельта-профиль;
16. Нижний профиль и уплотнитель;
17. Уплотнитель боковой;
18. Верхний профиль и уплотнитель;
19. Боковая крышка усиленная для панелей с отверстиями для крепления;
20. Профиль-рама, оснащенный греющим ПЭН проводом (опция);
21. Кронштейны крепления к потолку;
22. Пружинный амортизатор;
23. Дистанционный С-профиль.Технические характеристики
Параметр Значение Примечание Безотказность, количество циклов открывания-закрывания, не менее 120 000 (для ворот); 25 000 (для торсионного механизма) Усилие ручного открывания и закрывания, Н, не более 260 Вес полотна ворот, кг/м² 17 Точное значение зависит от типоразмера панелей, используемых в конструкции ворот Напряжение питания, В 220 В, 50 Гц (для контурного обогрева) Приведенное сопротивление теплопередаче, м² *°С/Вт 2,3 — без системы обогрева контура проема;
3,3 — с системой обогрева контура проемаДиапазон рабочих температур, °С До -30, ISD THERMALPRO с системой обогрева контура проема — низкотемпературные камеры;
до -5, ISD THERMALPRO без системы обогрева контура проема — среднетемпературные камерыНовинки
Сэндвич-панель толщиной 80 мм в совокупности с системой теплых профилей, снабженных терморазделительными вставками, не допускает промерзание панели.
Полностью обновлена система опорных кронштейнов торсионного механизма, что позволило существенно облегчить процесс монтажа:
- удобная установка торсионного механизма в сборе и легкая фиксация подшипников на заранее установленных на выносной трубе кронштейнах;
- крепление устройств защиты от разрыва пружин производится напрямую к опорному кронштейну, без использования переходников;
- новая система предполагает фиксацию кронштейна охватывающей скобой, что позволяет изменять положение опорных кронштейнов в процессе монтажа.Условия эксплуатации
1. Секции полотна ворот должны плавно передвигаться по направляющим, а сами ворота должны быть сбалансированными, т. е. их вес должен компенсироваться крутящим моментом торсионных пружин.
2. Следите за тем, чтобы люди и животные не находились в зоне действия ворот во время их работы.
3. Строго запрещено передвигаться под движущимся полотном ворот, т. к. это может привести к травмам.
4. Не подвергайте ворота ударам и не препятствуйте их свободному движению при открывании и закрывании.
5. Не подвергайте загрязнению направляющие и ролики, т. к. это может привести к нарушению плавности хода, а при наличии электропривода — к его перегрузке и выходу из строя.
6. Следите за тем, чтобы во время движения полотна в проеме отсутствовали посторонние предметы и мусор. Их наличие может привести к перекосу и заклиниванию полотна ворот.
Гарантийные обязательства
Покупателю предоставляется 10 лет гарантии на отсутствие сквозной коррозии cэндвич-панелей и стальных профилей системы направляющих.
Документация
Чертежи
ISD ThermalPro, низкий подъем;
ISD ThermalPro, низкий подъем, с опцией «греющий контур»;
ISD ThermalPro, низкий подъем, барабан сзади;
ISD ThermalPro, низкий подъем, барабан сзади, с опцией «греющий контур»;
ISD ThermalPro, стандартный подъем;
ISD ThermalPro, стандартный подъем, с опцией «греющий контур»;
ISD ThermalPro, стандартный наклонный подъем;
ISD ThermalPro, стандартный наклонный подъем, с опцией «греющий контур»;
ISD ThermalPro, высокий подъем;
ISD ThermalPro, высокий подъем, с опцией «греющий контур»;
ISD ThermalPro, высокий подъем с двойным изгибом направляющих;
ISD ThermalPro, высокий подъем с двойным изгибом направляющих, с опцией «греющий контур»;
ISD ThermalPro, высокий подъем, вал снизу;
ISD ThermalPro, высокий подъем, вал снизу, с опцией «греющий контур»;
ISD ThermalPro, высокий наклонный подъем;
ISD ThermalPro, высокий наклонный подъем, с опцией «греющий контур»;
ISD ThermalPro, высокий наклонный подъем, вал снизу;
ISD ThermalPro, высокий наклонный подъем, вал снизу, с опцией «греющий контур»;
ISD ThermalPro, вертикальный подъем;
ISD ThermalPro, вертикальный подъем, с опцией «греющий контур»;
ISD ThermalPro, вертикальный подъем, вал снизу;
ISD ThermalPro, вертикальный подъем, вал снизу, с опцией «греющий контур».Паспорта и сертификаты
Паспорт «Промышленные секционные ворота ISD THERMALPRO»;
Сертификат соответствия «Ворота для зданий и сооружений»;
Сертификат соответствия «Сэндвич-панели»;
Сертификат соответствия «Изделия комплектующие для ворот»;
Сертификат соответствия «Ворота секционные металлические» (Беларусь);
Экспертное заключение, соответствие СанПиН.Инструкции
Инструкция по монтажу секционных ворот ISD THERMALPRO;
Инструкция по монтажу секционных ворот со стандартным и высоким типами подъема;
Сервисная книжка «Секционные ворота». -
-
Дизайн панелей
Тип поверхности
Цвета
-
Комплектация
Базовая комплектация
Полотно из сэндвич-панели толщиной 80 мм с пенополиуретановым наполнителем высокой плотности. Листы панели термически разделены вставкой энергофлексового уплотнителя, который препятствует промерзанию стыка панелей.Верхний алюминиевый профиль с терморазделением препятствует образованию конденсата и наледи в верхней части полотна ворот. Верхний уплотнитель сохраняет свою эластичность при отрицательных температурах и обеспечивает надежную герметизацию проема.Нижний алюминиевый профиль сохраняет терморазделение сэндвич-панели. Двойной уплотнитель нивелирует неровности пола, обеспечивает хорошую герметизацию. Греющий провод устанавливается в нижний уплотнитель при выборе опции «обогреваемый контур проема».Двойная система уплотнения проема: боковой двухлепестковый уплотнитель установлен между полотном и угловой стойкой, внешний двухлепестковый контур уплотнения — между проемом и щитом. Проем уплотняется четырьмя уплотнителями одновременно, дополнительные воздушные камеры обеспечивают максимально надежную герметизацию.Системы направляющих из стали толщиной 2 мм — надежное решение, обладающее повышенным запасом прочности.Пружинный механизм на торсионных пружинах, рассчитанный на 25 000 циклов, обеспечивает долговечность конструкции ворот.Устройство защиты от обрыва троса устанавливается в качестве нижнего кронштейна на полотно ворот. В случае обрыва троса механизм срабатывает и предотвращает падение полотна ворот.Дополнительная комплектация
Система обогрева контура проема представляет собой силовой каркас, выполненный из алюминиевого профиля, внутри которого размещается греющий ПЭН-провод, что позволяет избежать примерзания полотна ворот к проему. Помимо этого по нижней кромке полотна ворот также пускается греющий кабель. Таким образом получается замкнутый греющий контур по всему периметру проема.Ручной цепной привод устанавливается на промышленные ворота всех типов подъема, служит для подъема/опускания полотна ворот вручную.Механическая задвижка позволяет запирать полотно изнутри помещения. Отличается простотой и надежностью. -
Монтаж
Подготовка строительного объекта
Для снятия необходимых показателей достаточно рулетки и строительного уровня. Все замеры производятся внутри помещения. Замер каждой величины необходимо производить как минимум в трех точках (в крайних положениях и по центру).
H – высота проема (расстояние от пола до верха проема).
B – ширина проема (расстояние от левого до правого края проема).
h – притолока (расстояние от верха проема до потолка) от 150 мм.
b1/b2 – левое/правое боковое расстояние (расстояние от соответствующего края проема до препятствия) от 120 мм.
L – глубина помещения.При замере Н и В за итоговый размер принимается наибольшая величина.
При замере h, b1, b2 и L за итоговый размер принимается наименьшая величина.
Требования к строительному объекту
Перепад уровня пола по всей ширине проема не должен превышать 10 мм. Необходимо обеспечить выдержку монтажной плоскости (пристенков и притолоки). Основание под установку системы направляющих должно быть монолитным и прочным, при отсутствии такового требуется дополнительная окантовка либо формирование проема металлоизделиями.
Способы монтажа
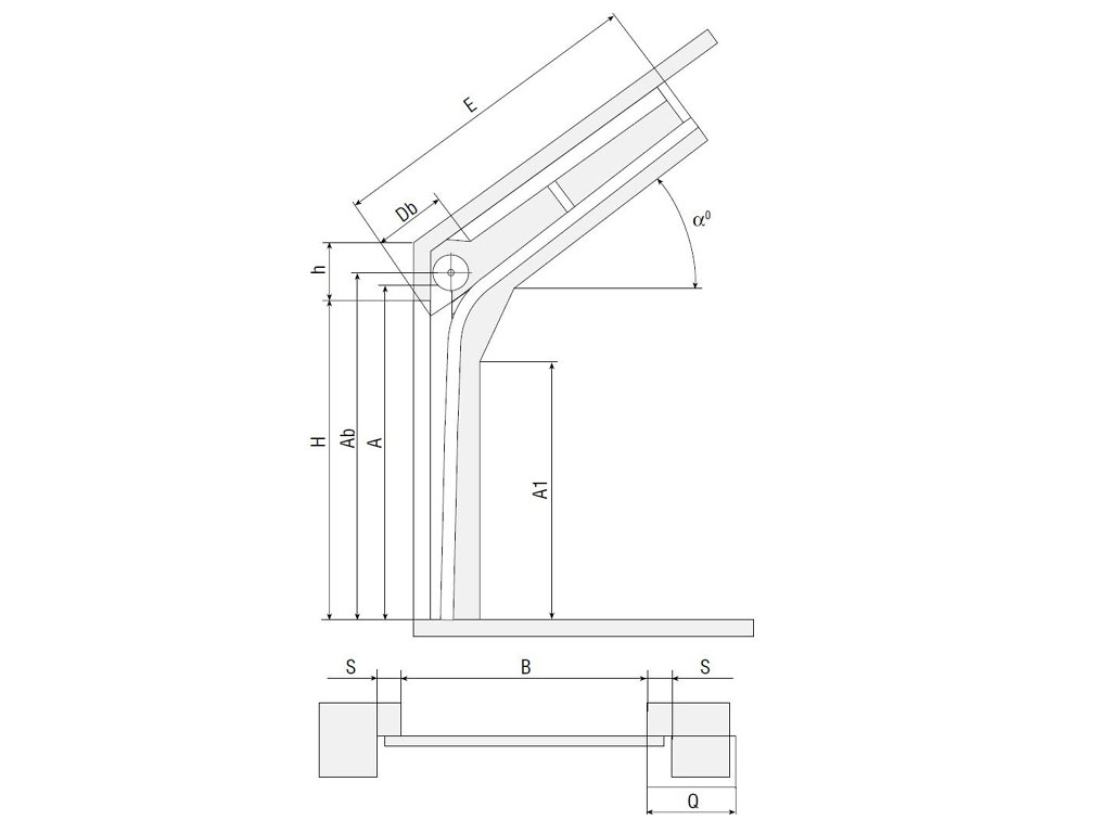
Стандартные конструктивные решения
Усл. обозначение, наименование параметра Расчетная формула H, мм Высота проема H h, мм Высота притолоки ≥ 230;
≥ 280 (при H ≥ 3 700);
≥ 280 (с вальным приводом, при H < 3 700)B, мм Ширина проема B A, мм Высота угловой стойки H + 110 Ab, мм Высота оси вала и барабана ≥ A + 59 A1, мм Высота вертикальной направляющей А - 543 A2, мм Высота горизонтальной направляющей А - 106 E, мм Длина горизонтальных направляющих Н + 340 Db, мм Рабочая зона торсионного механизма Зависит от размеров проема и веса щита S, мм Минимальное боковое пространство 120 (150 с опцией «обогреваемый контур») n, мм Перекрытие проема в открытом положении 190 (без привода);
0...10 (с приводом)Усл. обозначение, наименование параметра Расчетная формула H, мм Высота проема H h, мм Высота притолоки ≥ 150 B, мм Ширина проема B A, мм Высота угловой стойки при h < 170: H + 110;
при 150 ≤ h ≤ 170: H + h - 60Ab, мм Высота оси вала и барабана при h ≤ 170: H + 55;
при 150 ≤ h ≤ 170: H + h - 47A1, мм Высота вертикальной направляющей А - 543 A2, мм Высота горизонтальной направляющей А - 106 E, мм Длина горизонтальных направляющих Н + 550 Db, мм Рабочая зона торсионного механизма Зависит от размеров проема и веса щита S, мм Минимальное боковое пространство 120 (150 с опцией «обогреваемый контур») n, мм Перекрытие проема в открытом положении 240 (без привода);
40...60 (с приводом)Усл. обозначение, наименование параметра Расчетная формула H, мм Высота проема H h, мм Высота притолоки > 500 B, мм Ширина проема B A, мм Высота угловой стойки H + 250…985 Ab, мм Высота оси вала и барабана А + 86/97 A1, мм Высота вертикальной направляющей Н - 300 E, мм Длина горизонтальных направляющих Зависит от угла α° (размер, ограничивающий рабочую зону ворот вглубь помещения) Db, мм Рабочая зона торсионного механизма Зависит от размеров проема и веса щита S, мм Минимальное боковое пространство 120 (150 с опцией «обогреваемый контур») α° Угол наклона направляющих к горизонтали 5...65 (кратен 5°) Q, мм Зона расположения привода на вал 300 Усл. обозначение, наименование параметра Расчетная формула H, мм Высота проема H h, мм Высота притолоки ≥ 660 B, мм Ширина проема B HL, мм Расстояние от уровня горизонтальных направляющих до проема По умолчанию h - 330 A, мм Высота угловой стойки H + HL Ab, мм Высота оси вала и барабана A + 86/97 A1, мм Высота вертикальной направляющей А - 580 A2, мм Высота горизонтальной направляющей А - 53 E, мм Длина горизонтальных направляющих H - НL + 510...640 Db, мм Рабочая зона торсионного механизма Зависит от размеров проема и веса щита S, мм Минимальное боковое пространство 120 (150 с опцией «обогреваемый контур») Q, мм Зона расположения привода на вал 300 Усл. обозначение, наименование параметра Расчетная формула H, мм Высота проема H h, мм Высота притолоки ≥1 600 B, мм Ширина проема B HL, мм Расстояние от уровня горизонтальных направляющих до проема 1 330 ≤ HL ≤ h - 150 A, мм Высота угловой стойки H + HL Ab, мм Высота оси вала и барабана H + 400...600 + 280 A1, мм Высота вертикальной направляющей А - 580 A2, мм Высота горизонтальной направляющей А - 53 E, мм Длина горизонтальных направляющих H - НL + 510...640 Db, мм Рабочая зона торсионного механизма Зависит от размеров проема и веса щита S, мм Минимальное боковое пространство ≥ 300 Q, мм Зона расположения привода на вал ≥ 500 Усл. обозначение, наименование параметра Расчетная формула H, мм Высота проема H h, мм Высота притолоки ≥ 660 B, мм Ширина проема B HL, мм Расстояние от уровня горизонтальных направляющих до проема 330 A, мм Высота угловой стойки H + HL + 15...749 Ab, мм Высота оси вала и барабана ≤ А + 86/97 A1, мм Высота вертикальной направляющей Н + HL - 330...580 E, мм Длина горизонтальных направляющих Зависит от угла α° (размер, ограничивающий рабочую зону ворот вглубь помещения) Db, мм Рабочая зона торсионного механизма Зависит от размеров проема и веса щита S, мм Минимальное боковое пространство 120 (150 с опцией «обогреваемый контур») α° Угол наклона направляющих к горизонтали 5...65 (кратен 5°) Q, мм Зона расположения привода на вал 300 Усл. обозначение, наименование параметра Расчетная формула H, мм Высота проема H h, мм Высота притолоки ≥ 1 600 B, мм Ширина проема B HL, мм Расстояние от уровня горизонтальных направляющих до проема ≥ 1 330 A, мм Высота угловой стойки H + HL + 15...749 Ab, мм Высота оси вала и барабана > H + 680 A1, мм Высота вертикальной направляющей Н + HL - 330...580 E, мм Длина горизонтальных направляющих Зависит от угла α° (размер, ограничивающий рабочую зону ворот вглубь помещения) Db, мм Рабочая зона торсионного механизма Зависит от размеров проема и веса щита S, мм Минимальное боковое пространство 120 (150 с опцией «обогреваемый контур») α° Угол наклона направляющих к горизонтали 5...65 (кратен 5°) Q, мм Зона расположения привода на вал ≥ 650 Усл. обозначение, наименование параметра Расчетная формула H, мм Высота проема H h, мм Высота притолоки > Н + 500 B, мм Ширина проема B A, мм Высота угловой стойки 2H + 120 Ab, мм Высота оси вала и барабана A + 166 S, мм Минимальное боковое пространство 120 (150 с опцией «обогреваемый контур») Q, мм Зона расположения привода на вал 300 Усл. обозначение, наименование параметра Расчетная формула H, мм Высота проема H h, мм Высота притолоки > H + 120 B, мм Ширина проема B A, мм Высота угловой стойки 2H + 120 Ab, мм Высота оси вала и барабана H + 680 S, мм Минимальное боковое пространство 500 min Q, мм Зона расположения привода на вал ≥ 650 Усл. обозначение, наименование параметра Расчетная формула H, мм Высота проема H h, мм Высота притолоки R381: ≥ 420;
R305: ≥ 350B, мм Ширина проема B A, мм Высота угловой стойки R381: H + 235;
R305: H + 165Ab, мм Высота оси вала и барабана A + 97 A1, мм Высота вертикальной направляющей R381: A — 580;
R305: A — 490A2, мм Высота горизонтальной направляющей А - 110 E, мм Длина горизонтальных направляющих R381: H + 240;
R305: H + 290Db, мм Рабочая зона торсионного механизма Зависит от размеров проема и веса щита S, мм Минимальное боковое пространство 120 (150 с опцией «обогреваемый контур») Q, мм Зона расположения привода на вал 300
Промышленные секционные ворота из стальных сэндвич-панелей с торсионным механизмом ISD THERMALPRO
Рекомендации по замеру проема для установки секционных ворот
Проем для гаражных ворот характеризуется следующими параметрами:
H – высота проема в свету;
B – ширина в свету;
SR – расстояние до правой стены помещения от края проема, называемое правым заплечиком;
SL – расстояние до левой стены от края проема, или левый заплечик;
D – глубина помещения, т.е. расстояние от притолоки до задней стены;
h – расстояние от верха проема до потолка, или притолока.
Поскольку идеальных проемов не бывает, замерять вышеуказанные размеры нужно не менее, чем в трех местах: посередине проема, у правого и левого угла. Ориентироваться следует на наибольший показатель.
Нужно непременно проконтролировать при замере, чтобы притолока проема находилась в одной плоскости с заплечиками. На этих двух параметрах базируется установка секционных гаражных ворот изнутри проема.
Крайне желательно, чтобы на момент проведения замера уровень чистового пола был уже известен. Если строительство гаража не закончено, и чистового пола пока нет, необходимо вычислить и отметить его уровень на стене. Другим важным моментом является необходимость определить пространство для открывания ворот. Препятствиями могут стать потолочные перемычки, выступы на стенах, проходящие коммуникации.
Не стоит забывать и о том, что процесс монтажа секционных ворот требует определенного пространства для крепления, поэтому для заплечиков и притолоки имеются некоторые ограничения. Вполне вероятно, что придется несколько занизить или сузить проем с тем, чтобы получить возможность увеличить заплечики и притолоку до требуемых размеров. В любом случае, полученные параметры проема необходимо сравнить с расчетными.
Как нужно замерять высоту притолоки h
Выпуклый бетонный потолок.
Зачастую в гаражах потолок бывает выполнен монолитным способом и оказывается при этом недостаточно ровным, с выпуклостями. В подобных случаях при расчете уровня потолка за основу берется самая нижняя его точка.
По притолоке проходят трубы.
Коммуникации в гаражных помещениях редко бывают проложены скрытым способом и иногда проходят по притолоке. Поскольку убрать их не представляется возможным, то нижнюю точку проходящих труб или кабелей следует принимать за уровень потолка.
Уровень потолка снижается в глубину гаража.
В данном случае необходимо найти на потолке точку, отстоящую от проема на расстояние, равное сумме высоты проема плюс 0,7 м.
Слишком низкая (менее 110 мм) притолока.
Если высота притолоки составляет менее 110 мм (или 150 мм для случаев установки потолочного привода), ее следует увеличить путем занижения проема. Для решения этой задачи можно использовать профильную трубу или деревянный брус. Снаружи конструкцию нужно закрыть фальш-панелью.
Присутствие второй перемычки.
Если не брать во внимание наличие второй перемычки, установленные ворота не смогут открываться. Для того, чтобы этого избежать, нужно правильно определить в данном случае уровень потолка и взять за основу нижнюю точку перемычки.
Невертикальная притолока.
Часть притолоки может оказаться невертикальной. В таких случаях уровнем потолка следует считать точку окончания вертикальной части притолоки. Напоминаем, что она и заплечики должны находиться в одной плоскости.
Неравномерная по высоте притолока.
В ряде случаев притолока может находиться в одной плоскости с заплечиками и быть достаточной для монтажа секционных ворот, но иметь неравномерную высоту. Недостаток устраняется ее выравниванием с помощью профильной трубы, бруса, штукатурки; при необходимости, можно срезать ее часть. То же касается и заплечиков.
Неравномерная (скошенная) высота притолоки по ширине проема.
Если потолок в гараже выполнен со скосом по ширине помещения, то замер высоты притолоки в данном случае необходимо проводить по точке, отстоящей на расстоянии 100 мм от края проема.
Потолок выполнен из плит перекрытий с ребрами жесткости.
Если потолок в гараже представляет собой железобетонные перекрытия с ребрами жесткости, то в данном случае уровнем потолка будет нижняя точка ребер плит перекрытия. Заказывая изготовление конструкции секционных ворот, следует предусмотреть большее количество монтажного уголка, который потребуется для крепления горизонтальных направляющих.
По потолку проходят трубы вентиляции.
Вентиляционные коммуникации, смонтированные под потолком, следует принимать во внимание при замерах проема для ворот. В таких случаях за уровень потолка принимают нижнюю точку вентиляционных труб.
Определение мест крепления конструкции ворот к стенам.
Крепление секционных гаражных ворот на заплечики к стенам происходит при помощи анкеров или саморезов. При этом ось крепления должна проходить строго параллельно краю проема ворот и отстоять от него на расстояние 45 мм. Места крепления ворот играют важную роль. Так, если обрамление проема выполнено из каких-либо материалов, делающих крепление невозможным, следует увеличить отступ и, соответственно, ширину проема ворот, а также сдвинуть ручку ближе к центру.
Пространство, потребное для установки секционных ворот, должно быть освобождено от стройматериалов и строительного мусора; Проемы должны быть прямоугольной формы (либо другой, предварительно согласованной с Заказчиком формы, соответствующей проекту); плоскости обрамления должны иметь гладкую и ровную поверхность, без трещин и наплывов раствора; рабочие поверхности не должны иметь существенных отклонений от вертикали и горизонтали (в пределах +/- 1,5-5,0 мм).












